湖南警安6个加油站建设工程施工进展情况
发布时间:2021-08-16 10:05:04发布人:浏览次数:次

黄月加油站工程
1.工程地点:望城区黄金园街道黄金园村
2.工期要求:工期总日历天数90天
3.形象进度:2020年8月19日竣工验收交付使用
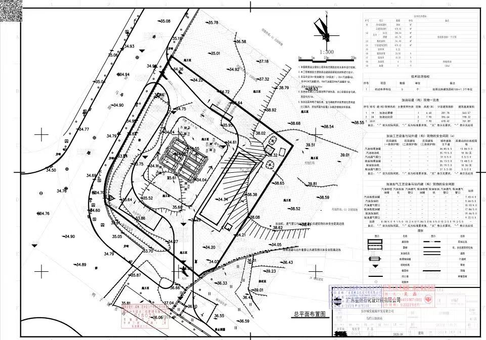
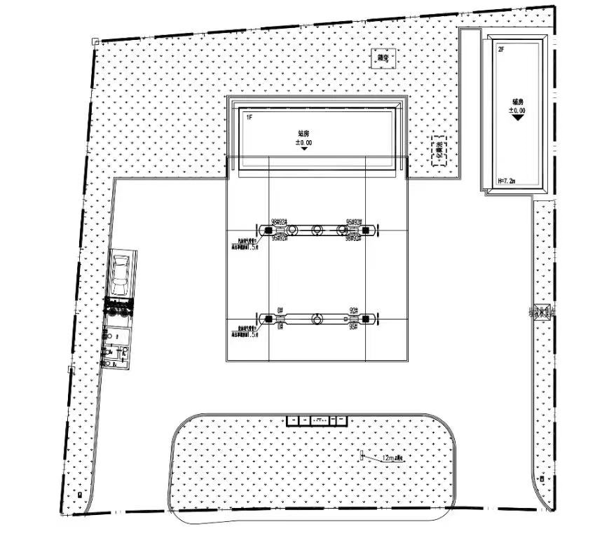
4.工程内容:总用地面积6664.6平方米,净用地面积3501.7平方米,建筑面积800.23平方米。建设站房206.89平方米、辅房138.25平方米、罩棚455平方米、30立方米储油罐4座,4枪加油机6台。






1.工程地点:长沙市岳麓区潇湘北路以西,三汊矶大桥以南4.工程内容:项目用地面积2935.7平方米,建设一层站房和钢结构罩棚,总建筑面积490.5平方米。新设置2座埋地油罐,3台加油机。






1.工程地点:雨花区长沙大道以南200米,新花候路以东4.工程内容:总用地面积4445.17平方米,基地面积3066.01平方米,建筑面积635.48平方米。站房1建筑面积392.52平方米、站房2建筑面积242.96平方米、罩棚262.2平方米、30立方米卧式FF双层储油罐4座、2台双枪双油加油机和2台四枪双油加油机。



4.工程内容:负责前期临时水电搭接、洗车场地、项目围挡搭建及改造现场清理;负责站房、生产用房原装饰拆除,营业间隔墙拆除及新建、室内门窗洞口预留安制;室内墙面,吊顶装饰装修,室外管沟开槽及回填;负责室外强弱电沟槽开挖及回填,负责室外强弱电管线制安及预留;负责油罐区土方开挖转运、罐池砂石回填、罐池砼浇筑、模板安装、钢筋制安、墙体砌筑、防雷接地桩制安、输油管线沟槽挖填;负责室外雨污水管道挖填、管道安放、排水井砌筑、化粪池制安、隔油池制安、环保沟制安;负责室外绿化平整、绿化种植、花坛石制安、路沿石制安;负责场地内混凝土地坪浇捣、切缝;负责加油加气岛土建施工部分;负责设计图上消防工程;室外给水管道铺设、水表井砌筑;其他甲方指定的施工项目。





3.形象进度:2021年8月8日进场,已基本完成临建搭设、项目封闭式围挡搭建4.工程内容:负责前期土方场内平衡、余土外运;负责前期临时水电搭接、洗车场地、项目围挡搭建及改造现场清理;负责站房、生产用房原装饰拆除,营业间隔墙拆除及新建、室内门窗洞口预留安制;室内墙面,吊顶装饰装修,玻璃幕墙安装;负责室外强弱电沟槽开挖及回填,负责室外强弱电管线制安及预留;负责油罐区土方开挖转运、罐池砂石回填、罐池砼浇筑、模板安装、钢筋制安、墙体砌筑、防雷接地桩制安、输油管线沟槽挖填;负责室外雨污水管道挖填、管道安放、排水井砌筑、化粪池制安、隔油池制安、环保沟制安;负责室外绿化平整、绿化种植、花坛石制安、路沿石制安;负责场地内混凝土地坪浇捣、切缝;负责加油岛土建施工部分;负责设计图上消防、暖通工程。



长沙县福临镇双起桥村双起桥加油站一期站房、辅房
1.工程地点:本项目位于长沙县福临双起桥村黄兴大道北延线以西(毗邻黄兴大道)。2.建设规模:本项目规划用地面积5887.53平米,一期拟建二级加油站(用地面积约3555.6平米),新建站区进、出口(与黄兴大道相连),一期主要建设内容包括站房、辅房、加油区、储油区、进出口道路及相关配套设施工程。4.施工进度:项目目前室外围墙已砌筑完成;辅助用房二层梁、板、柱模板已制作安装完成;3座30立方SF双层油罐,1座50立方SF双层油罐已安装完成,预计10月中旬可完成本项目整体建设。









